136 Solterra Way Durham NC -
SAVE THE DATE - MAY 16-17!
Free, Self-Guided Tour!

Solterra

136 Solterra Way, Durham, NC 27705
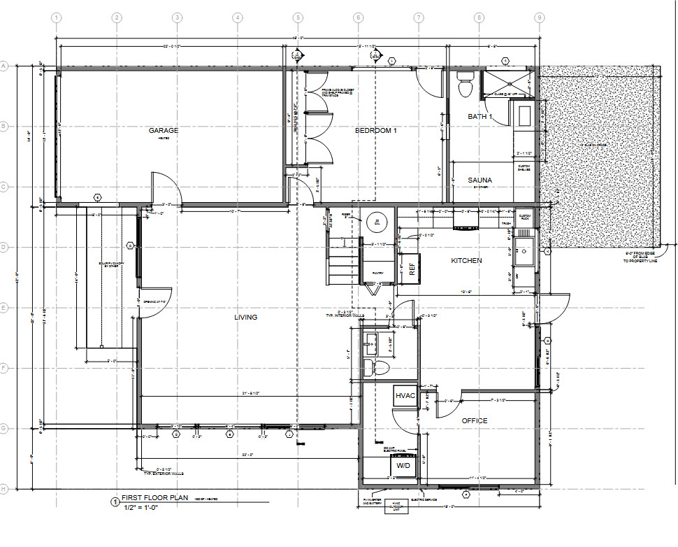
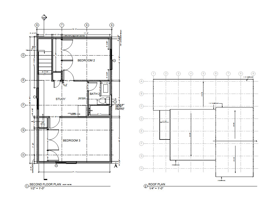
Beds
3
Baths
2.5
Car Garage
1
SqFt
2209
Entry #   1

Plan By: Richard Harkrader

Sales/Builder: Nick Gwiazdowski - 518-495-3091

Stage of Construction: Finished

  • Advanced framing w/ 2x6, 24"O.C.Home designed with this in mind with even dimensions requiring less wood, more insulation
  • Passive solar orientated design, South facing windows with properly sized overhangs, Minimal windows on north side, on insulated slab.
  • Continuous R6 External insulation.
  • 10.58kW Solar Panel system, Expecting annual production of 12,400 KwH
  • Continuous Air barrier throughout structure.
  • Mechanical system designed all inside the conditioned structure to minimize duct distance for an efficient and properly sized system, Dehumidifier included in system.
  • Radiant Barrier roof decking
  • Dense pack cellulose insulation Exceeds building code on walls and roof. Made of recycled materials.
  • All trim and exposed wood in the house came from the lot. Milled locally in Graham NC.
  • 29 gauge master rib Metal roof with 45year rated finish.
  • Take I‑40 West toward Durham.
  • Take Exit 270 for US‑15/501 toward Durham/Chapel Hill.
  • At the top of the ramp, turn right onto US‑15/501 North toward Durham.
  • Continue on US‑15/501 North for a few miles, then take the exit for Morreene Rd/Erwin Rd (follow signs toward Erwin Rd/Duke University area).
  • Turn left onto Erwin Road if you exited to it, and continue northwest.
  • Turn right onto Old Chapel Hill Road.
  • Turn into the Solterra neighborhood (watch for the Solterra sign/entrance), then follow Solterra
  • Way to number 136 on your left/right depending on the internal layout